Toegankelijk voor ouderen

Toegankelijk voor minder validen

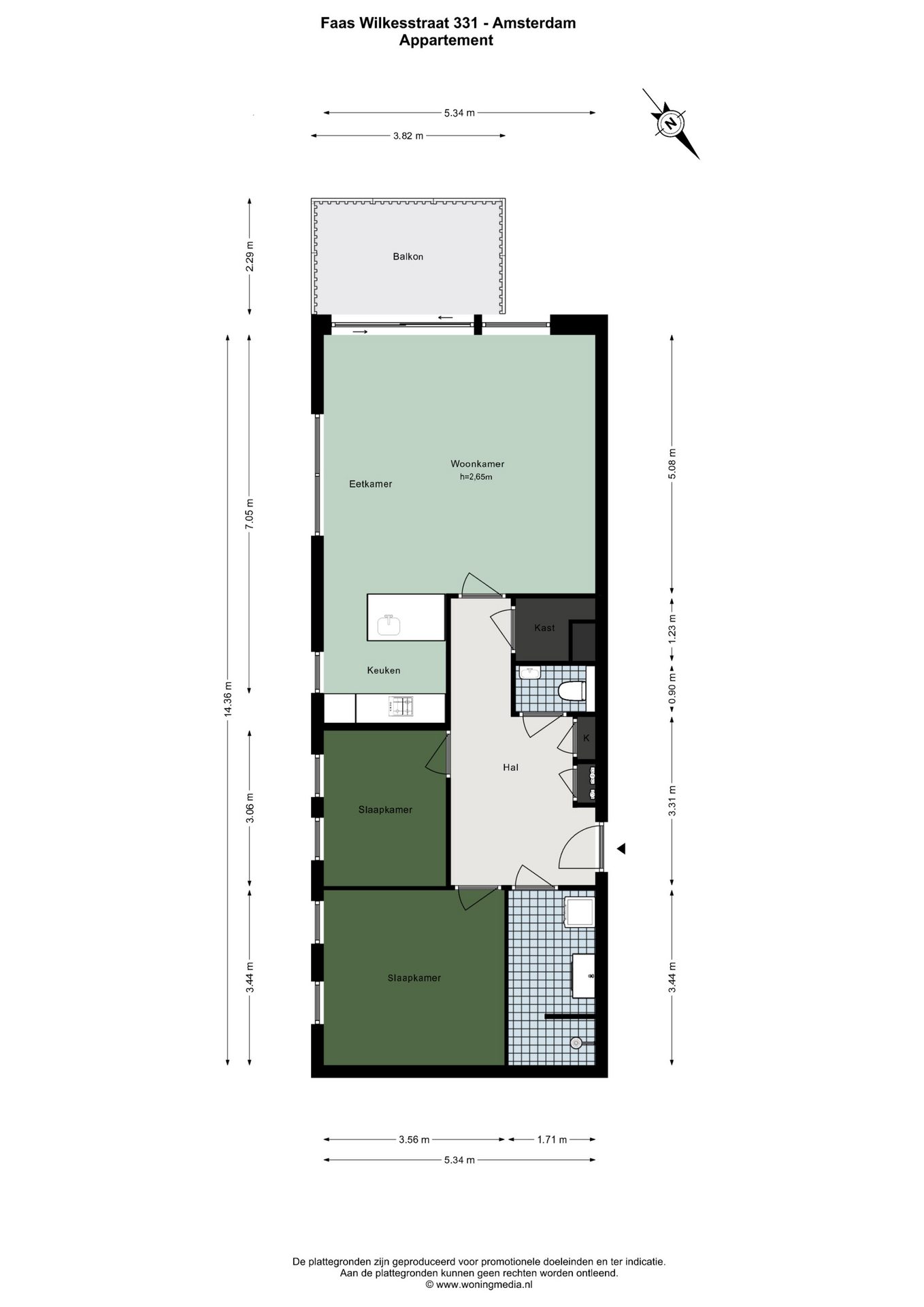
Goed afgewerkt 3-kamer hoekappartement op de derde verdieping van 78 m², gelegen op het populaire Zeeburgereiland. Het appartement heeft energielabel A, twee slaapkamers, een lift en een aparte berging.

Indeling
Via het gezamenlijke trappenhuis of de lift bereik je het appartement op de eerste verdieping. Je komt binnen in de ruime hal, die toegang geeft tot de verschillende vertrekken van de woning. De hal is voorzien van een ruime opbergkast en de meterkast. Het separate toilet, uitgevoerd in lichte tinten en voorzien van een fonteintje, is hier ook te vinden. Bij binnenkomst in de woonkamer valt direct het mooie licht op, dankzij de hoekligging en de vele raampartijen. De woning heeft uitzicht op de sportvelden en de kenmerkende Enneüs Heermabrug die het Zeeburgereiland verbind met IJburg.

De open keuken is uitgerust met alle benodigde apparatuur zoals een koelkast, oven, vaatwasser, spoelbak, inductiekookplaat met afzuigsysteem en volop opbergruimte.
Naast de keuken is een gezellige eethoek gecreëerd, ideaal om met vrienden en familie te tafelen. Door de efficiënte indeling blijft er voldoende ruimte over voor een comfortabele zithoek. Via de schuifdeuren bereik je het balkon, gelegen op het zuidwesten, waar je optimaal van de zon en zonsondergang kunt genieten met een heerlijk uitzicht over het zeeburgereiland.

Aan de achterzijde bevindt zich de master bedroom, een ruime kamer met voldoende plek voor een tweepersoonsbed en kastruimte. De tweede slaapkamer wordt momenteel als werkkamer gebruikt, maar is ook zeer geschikt als volwaardige slaapkamer.

De badkamer, uitgevoerd in lichte tinten, is voorzien van een dubbele wastafel, inloopdouche en een aansluiting voor de wasmachine.
Daarnaast beschikt de woning over een berging van 6 m², ideaal voor extra opslag.

Omgeving
Het nieuwe stadspark, de Urban Sport Zone, is een openbaar sportcomplex met onder andere de grootste openlucht skatebaan van Nederland, een hardloopbaan, twee padelbanen, basketbal- en voetbalvelden en diverse speeltuinen. Het complex wordt omringd door hoogwaardige nieuwbouw en biedt uitzicht op het Buiten IJ/open water. In de buurt vind je verschillende scholen, supermarkten, kinderopvang en gezellige eetgelegenheden zoals Haddock en Kaap Amsterdam. Een medisch zorgcentrum, huisartsen en tandartsen zijn op loopafstand te bereiken. Je woont precies tussen IJburg en Oost, waardoor alles snel bereikbaar is met de fiets, auto of het openbaar vervoer. Of je nu langs de kade wilt struinen of wilt zonnen op het strand van IJburg, het is allemaal dichtbij. Met de auto ben je snel op de snelweg, en tram 26, die op loopafstand ligt, brengt je binnen 10 minuten naar Amsterdam Centraal Station. Binnen een paar minuten fietsen sta je op de Dappermarkt in Oost. De talloze hotspots in de Indische buurt bieden een keur aan culinaire en winkelmogelijkheden. Voor wie op zoek is naar groen, zijn het Diemerpark en Flevopark in de buurt. De veelzijdigheid en mogelijkheden in dit gebied zijn overweldigend.
 
Bijzonderheden
– Fraai afgewerkt HOEK-appartement met veel licht;
– Separate berging van 6m2;
– Energielabel A;
– Volledig voorzien van vloerverwarming;
– Lift;
– Videofoon;
– Centraal ventilatiesysteem;
– Glasvezelaansluiting tv/internet;
– Gezonde en actieve vereniging;
– Servicekosten €144,65 per maand;
– Erfpacht: canon is € 2.382,- per jaar en wordt vanaf 2028 jaarlijks geïndexeerd;
– Oplevering in overleg;
– Koopakte wordt opgemaakt door een notaris in Amsterdam.
—————————————————————————————-

Well finished 3-room corner apartment on the third floor of 78 m², located on the popular Zeeburgereiland. The apartment has energy label A, two bedrooms, an elevator and a separate storage room.

Layout
You reach the apartment on the first floor via the shared staircase or the elevator. You enter the spacious hall, which gives access to the various rooms of the house. The hall has a spacious storage cupboard and the meter cupboard. The separate toilet, in light tones and equipped with a sink, can also be found here. When you enter the living room, you immediately notice the beautiful light, thanks to the corner location and the many windows. The house has a view of the sports fields and the characteristic Enneüs Heerma Bridge that connects Zeeburgereiland with IJburg.

The open kitchen is equipped with all necessary equipment such as a refrigerator, oven, dishwasher, sink, induction hob with extractor system and plenty of storage space.
A cozy dining area has been created next to the kitchen, ideal for dining with friends and family. The efficient layout leaves enough space for a comfortable seating area. Through the sliding doors you reach the balcony, located on the southwest, where you can optimally enjoy the sun and sunset with a wonderful view over Zeeburger Island.

At the rear is the master bedroom, a spacious room with enough space for a double bed and cupboard space. The second bedroom is currently used as an office, but is also very suitable as a full-fledged bedroom.

The bathroom, in light tones, has a double sink, walk-in shower and a connection for the washing machine.
In addition, the house has a storage room of 6 m², ideal for extra storage.

Environment
The new city park, the Urban Sport Zone, is a public sports complex including the largest open-air skating rink in the Netherlands, a running track, two padel courts, basketball and football fields and various playgrounds. The complex is surrounded by high-quality new construction and offers a view of the Buiten IJ/open water. In the area you will find several schools, supermarkets, childcare and cozy eateries such as Haddock and Kaap Amsterdam. A medical care center, general practitioners and dentists are within walking distance. You live exactly between IJburg and Oost, making everything quickly accessible by bicycle, car or public transport. Whether you want to stroll along the quay or sunbathe on the beach of IJburg, it is all close by. By car you can quickly reach the highway, and tram 26, which is within walking distance, takes you to Amsterdam Central Station within 10 minutes. Within a few minutes of cycling you will be at the Dappermarkt in East. The countless hotspots in the Indische Buurt offer a variety of culinary and shopping options. For those looking for greenery, the Diemerpark and Flevopark are nearby. The versatility and possibilities in this area are overwhelming.

Bijzonderheden
– Fraai afgewerkt HOEK-appartement met veel licht;
– Separate berging van 6m2;
– Energielabel A;
– Volledig voorzien van vloerverwarming;
– Lift;
– Videofoon;
– Centraal ventilatiesysteem;
– Glasvezelaansluiting tv/internet;
– Gezonde en actieve vereniging;
– Servicekosten €144,65 per maand;
– Erfpacht: canon is € 2.382,- per jaar en wordt vanaf 2028 jaarlijks geïndexeerd;
– Oplevering in overleg;
– Koopakte wordt opgemaakt door een notaris in Amsterdam.

Kenmerken

Status
Verkocht
Koopsom
€ 535.000,- k.k.
Prijs per m²
€ 6.859
Aanvaarding
In overleg
Servicekosten
€ 144,-

Bouwvorm

Soort object
Appartement
Soort appartement
Bovenwoning
Subtype woning
3
Bouwjaar
2020
Bouwvorm
Bestaande bouw
Liggingen
Aan rustige weg, In woonwijk, Vrij uitzicht
Bijzonderheden
Toegankelijk voor ouderen, Toegankelijk voor minder validen

Oppervlakte en inhoud

Woonoppervlakte
78 m2
Inhoud
257 m3
Gebouwgebonden buitenruimte
9 m2

Indeling

Aantal kamers
3
Aantal slaapkamers
2
Aantal badkamers
1
Aantal woonlagen
1

Energie

Energieklasse
A
Energie einddatum
12 november 2030
Isolatie
Volledig geïsoleerd
Verwarming
Vloerverwarming geheel
Warmwater
Stadsverwarming

Buitenruimte

Tuin
Geen tuin

Overig

Voorzieningen
Mechanische ventilatie, Lift, Schuifpui, Glasvezel kabel, Natuurlijke ventilatie
Permanente bewoning
Ja
Onderhoud binnen
Uitstekend
Onderhoud buiten
Uitstekend
Huidig gebruik
Woonruimte
Huidige bestemming
Woonruimte

VvE checklist

Periodieke bijdrage
Ja
Vergadering VvE
Ja
Onderhoudsplan
Ja
Opstalverzekering
Ja
Inschrijving KvK
Ja
Reservefonds
Ja

Kadastrale gegevens

Gemeente
Amsterdam
Kadaster Gegevens Sectie:
k
Perceelnummer
10915
Index
74
Eigendomssituatie
Eigendom belast met erfpacht
Lasten
2.382,00